011 292 3066

كتلة | جميع الحقوق محفوظة . 2025  ©

التصميم المعماري والمخططات الهندسية
نقدم خدمات التصميم المعماري والمخططات الهندسية المتكاملة التي تجمع بين الإبداع، الكفاءة، والدقة في التفاصيل.
التصميم المعماري والمخططات الهندسية
نقدم خدمات التصميم المعماري والمخططات الهندسية المتكاملة التي تجمع بين الإبداع، الكفاءة، والدقة في التفاصيل.
التصميم المعماري والمخططات الهندسية
نقدم خدمات التصميم المعماري والمخططات الهندسية المتكاملة التي تجمع بين الإبداع، الكفاءة، والدقة في التفاصيل.

المعايير الاساسية في تنفيذ الاعمال :

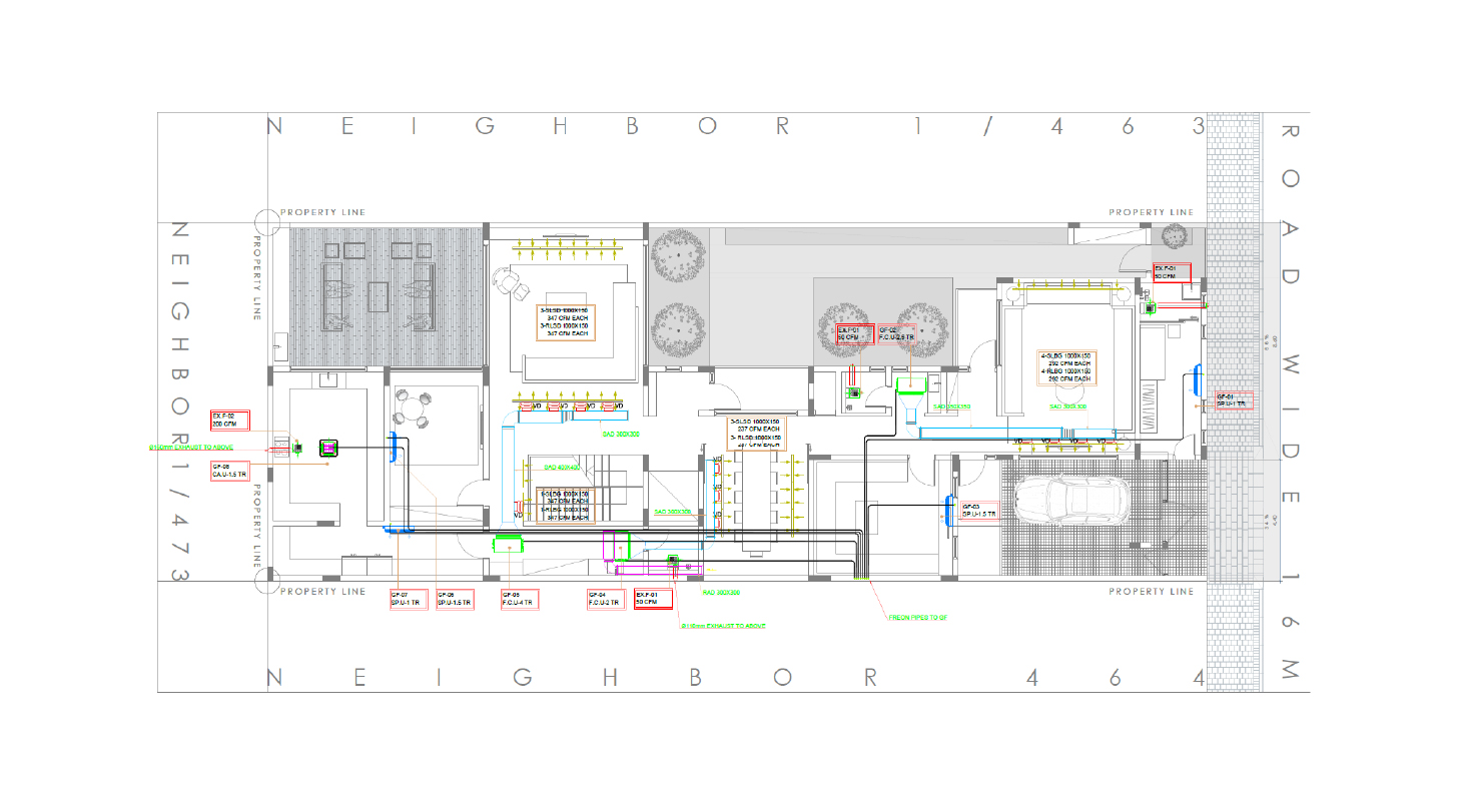
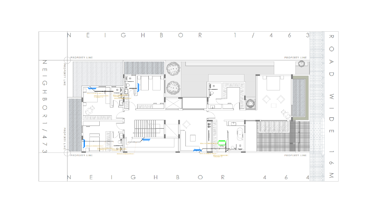
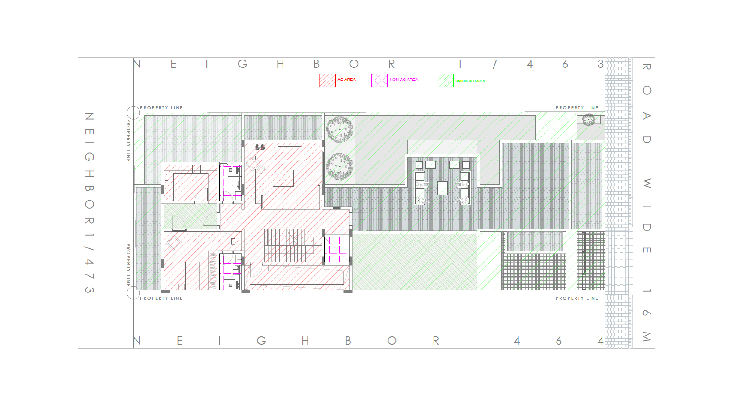
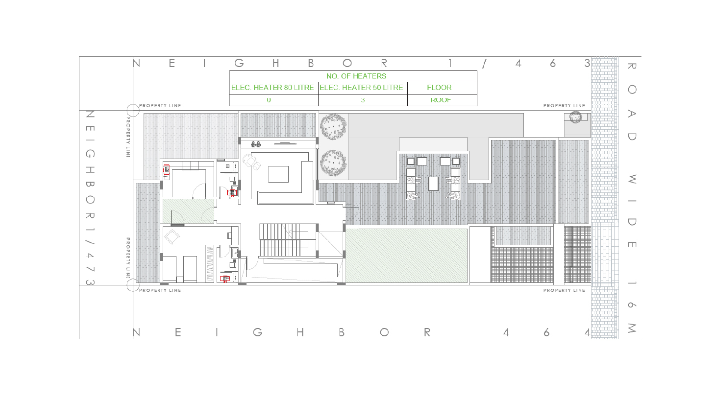
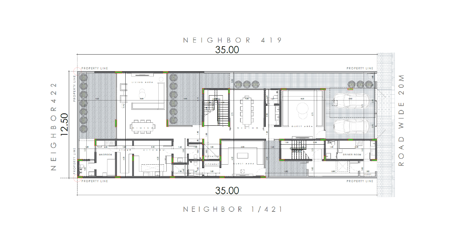
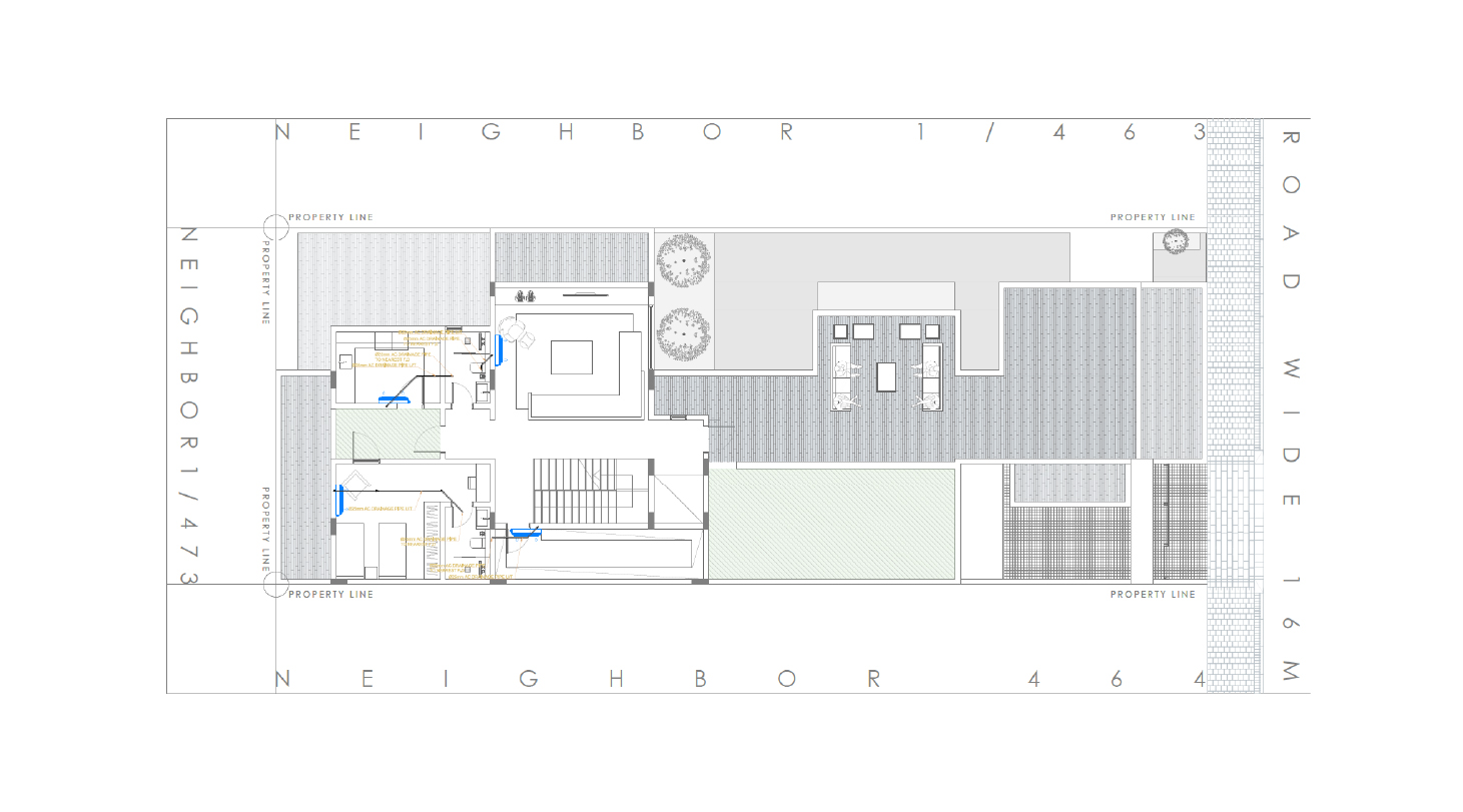
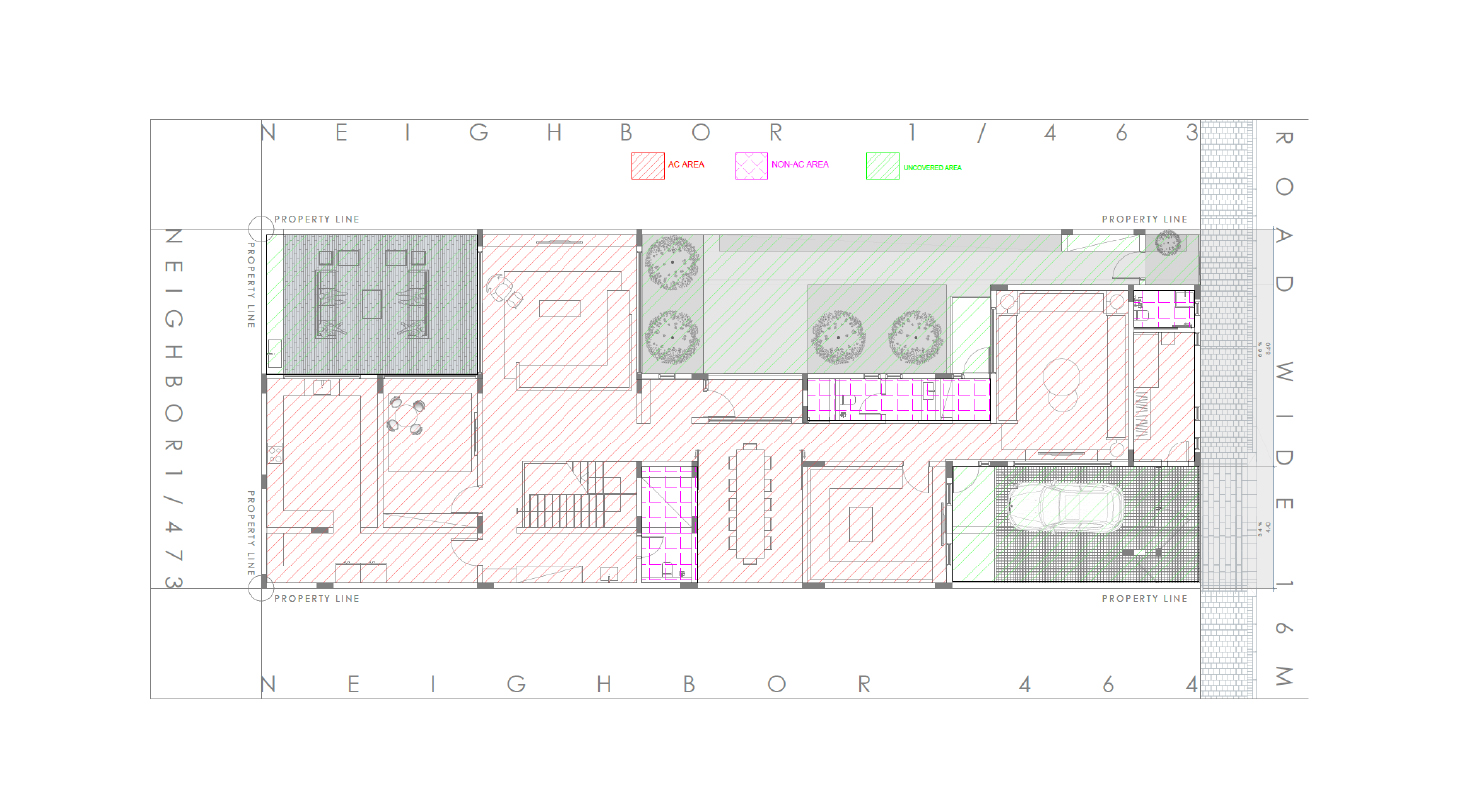
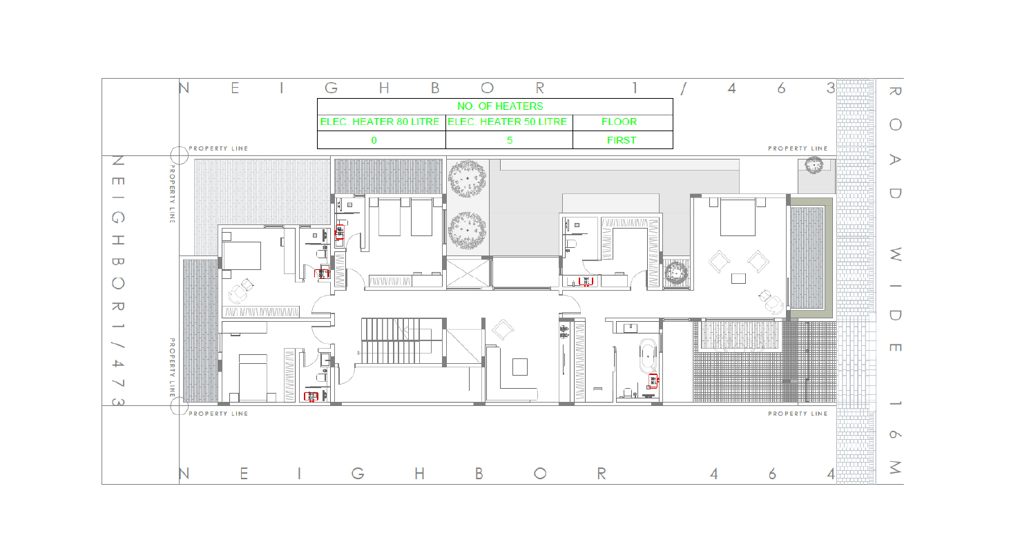
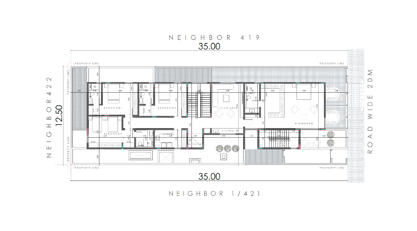
في شركة كتلة للمقاولات نقدم خدمات التصميم المعماري وإعداد المخططات الهندسية وفق رؤية إبداعية مدروسة تجمع بين الجمال الوظيفي والدقة التنفيذية، مع الالتزام بكود البناء السعودي والاشتراطات البلدية المعتمدة.

أولاً: التصميم المعماري
  • تصاميم مخصصة: نبتكر تصاميم فريدة للمنازل السكنية، المشاريع التجارية، والمباني العامة بما يعكس رؤية العميل.
  • إبداع متجدد: نعتمد أحدث الاتجاهات والتقنيات لضمان تميز مشاريعنا وجعلها أكثر جاذبية.
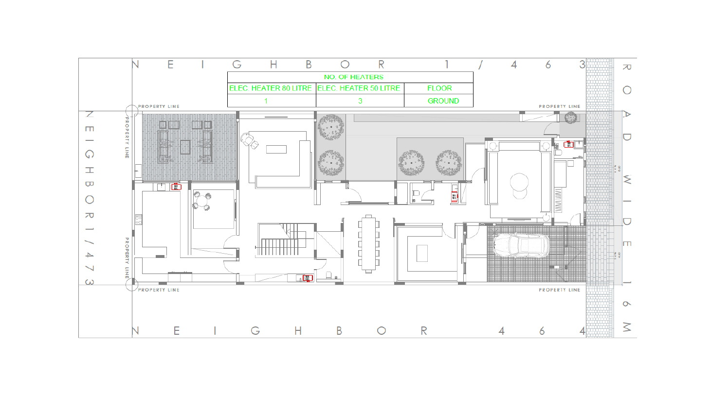
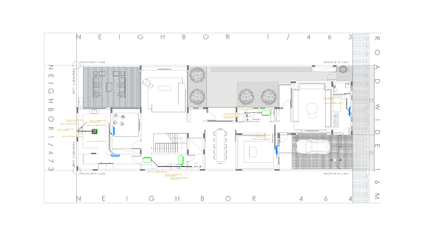
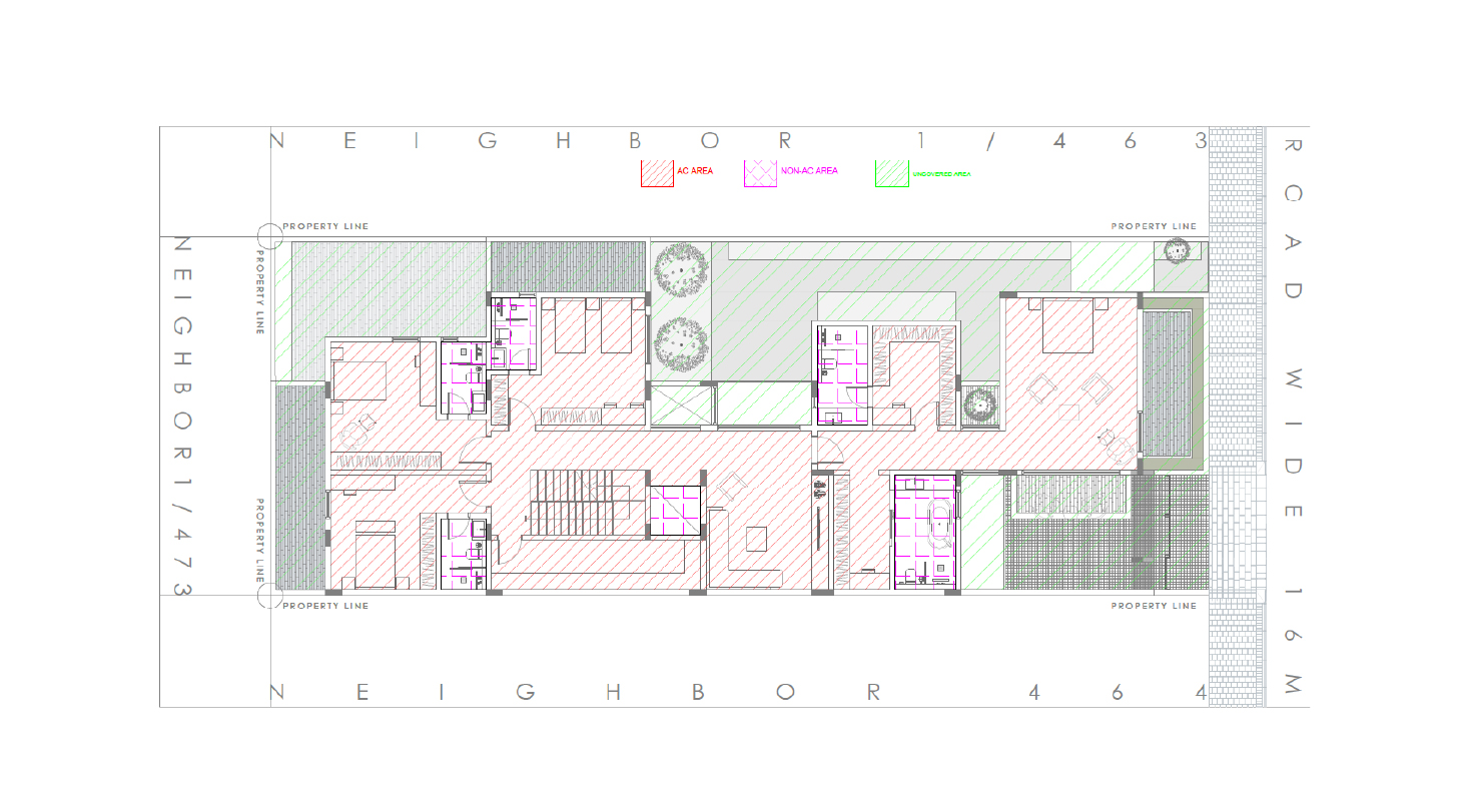
  • تفاصيل متكاملة: نوفر مخططات شاملة تشمل الإنشائية، الكهربائية، الميكانيكية والصحية.
  • التزام بالمعايير: نلتزم بالأنظمة المحلية وأعلى المعايير الهندسية لضمان سلامة وجودة المشروع.
  • تحليل الموقع: دراسة دقيقة تضمن أفضل استغلال للمساحات.

  • حلول مستدامة: تقديم بدائل صديقة للبيئة تسهم في استدامة المشاريع.

  • دقة واحترافية: نضع الجودة في كل تفاصيل أعمالنا.

  • فريق متخصص: مهندسون ومعماريون بخبرة عالية يعملون بتناغم لتحقيق رؤيتك.

  • حلول مبتكرة: أفكار جديدة تلبي احتياجات العملاء وتواكب المستقبل.

  • الاجتماع الأولي: التعرف على متطلبات العميل ورؤيته.

  • التصميم الأولي: تقديم أكثر من خيار تصميمي متناسب مع تطلعات العميل.

  • إعداد المخططات: تحويل التصميم إلى رسومات هندسية تفصيلية.

  • المراجعة والتنفيذ: التأكد من توافق جميع المخططات مع توقعات العميل والجدول الزمني.